
ATUAÇÃO
Oferecemos serviços de engenharia e assessoria industrial com dedicação e experiência para atender suas necessidades.


Otimização de Processos Industriais
"
Nossos Serviços
Engenharia e assessoria industrial com foco em soluções práticas.




REGULARIZAÇÃO JUNTO A MAPA E IMPLANTAÇÃO DE BPF
MELHORIA CONTINUA NA LINHA DE PROCESSAMENTO: DOSAGEM/MOAGEM/MISTURA/PELETIZAÇÃO/ MICRO DOSAGEM /EXPEDIÇÃO
Projetos Alfa
Engenharia e assessoria industrial com qualidade.


Consultoria
Análise técnica para otimizar processos.


Projetos
Desenvolvimento de soluções personalizadas.




Implantação Industrial
Projetos e acompanhamento da Implantação Industrial
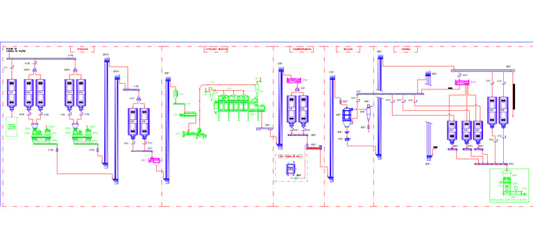
Fluxograma e As-Built
Fluxograma e Lista de todos equipamentos, com todas as informações para manutenção preventiva e preditiva. Identificação de gargalos e alterações para ganho de produção
→
→
→
→
Receba novidades
Atualizações e dicas da Alfa Engenharia
Contato
Fale conosco para soluções em engenharia
Telefone
alfa@engenhariaalfa.com
+55 19 99895-1710
© 2025. All rights reserved.